
Block 18 Section 11, Mitchell
29 Darling Street, Mitchell, ACT, 2911, AU
18,137 sf
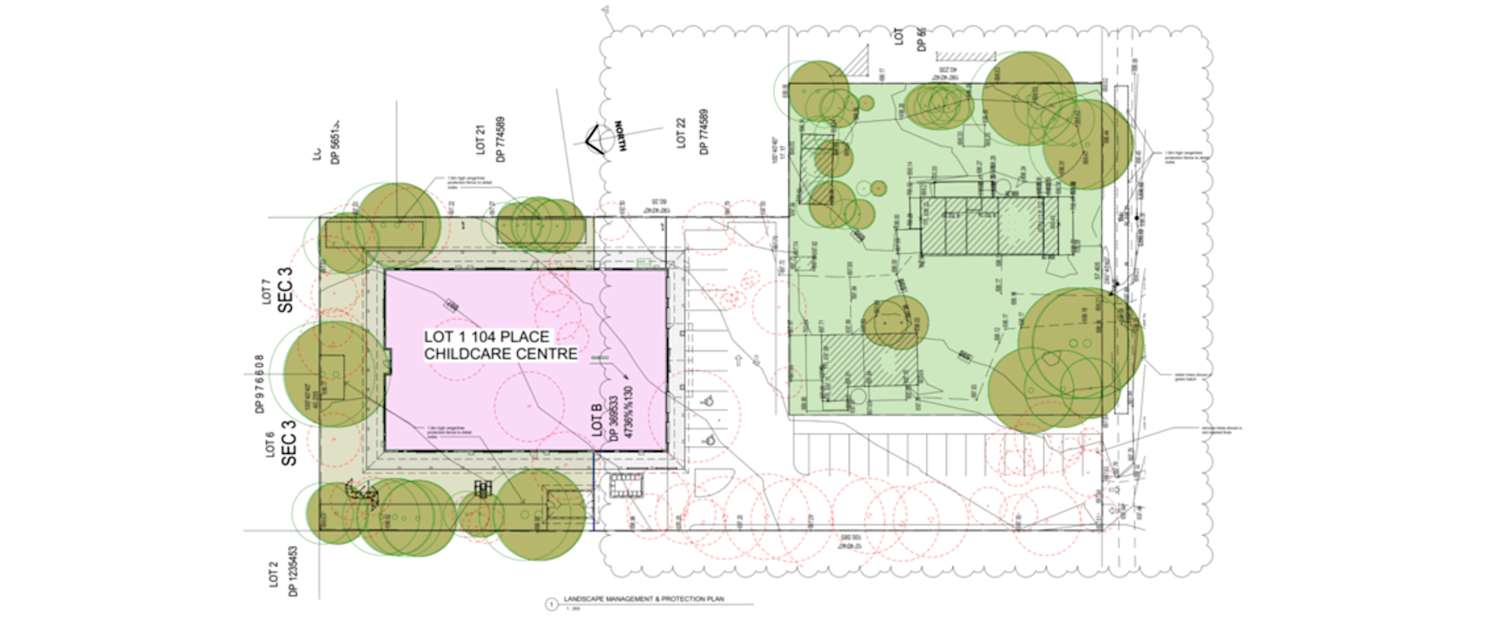
JLL is proud to exclusively present 54 Forster Street, Bungendore to the market for sale or lease by Private Treaty. This 2,426 sqm (subject to survey), DA-approved development and landholding is located on the southern edge of Bungendore's town centre. The property presents developers and childcare owners alike with an exceptional opportunity to capture rising demographic demand in the heart of a rapidly expanding town.
The approved development includes an 858.42 sqm childcare centre to accommodate 104 places and is further complemented by 753 sqm of outdoor play area and 26 on-site car spaces.
With a current population of around 5,000, comprising approximately 1,500 families, the burgeoning town of Bungendore is experiencing growth at a rate nearly double the national rate. To accommodate an expected population surge to 12,000 by 2048, Bungendore is actively investing over $300 million in infrastructure and development throughout 2022-2027.
Bungendore is a thriving town, characterised by its strong sense of community. Bungendore's recent crowning as Australia's Small Tourism Town is underpinned by its exceptional accessibility, with major arterial road connections enabling 20-minute commutes to Queanbeyan and 30 minutes to Canberra.
For sale by Off-Market Private Treaty, Contact Exclusive Agents JLL